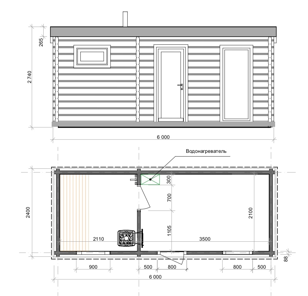
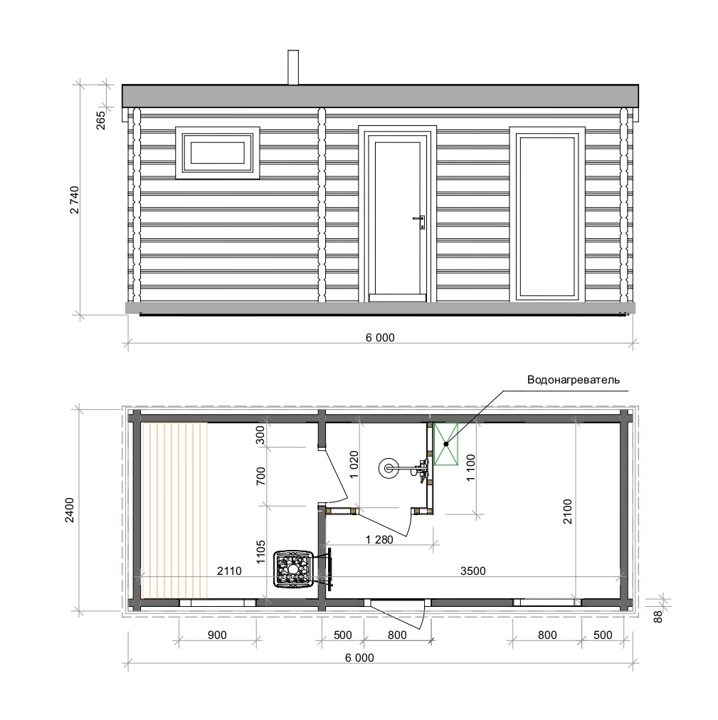
Модульная Баня SmDom BRUS.2,5 х 6
Баня состоит из 1 модуля
тип конструкции Профилированный Брус
Материал Бруса ТермоДерево
тип конструкции Профилированный Брус
Материал Бруса ТермоДерево
Производитель: SegmentDom
880 000 руб.
Похожие товары


